无锡洛社科创绿洲产业园一期工程规划设计方案变更审查批前公示
2023-04-17 09:49:22 无锡市自然资源和规划局
根据城乡规划管理有关规定,现对无锡洛社科创绿洲产业园一期工程规划设计方案变更进行批前公示。
一、项目概况
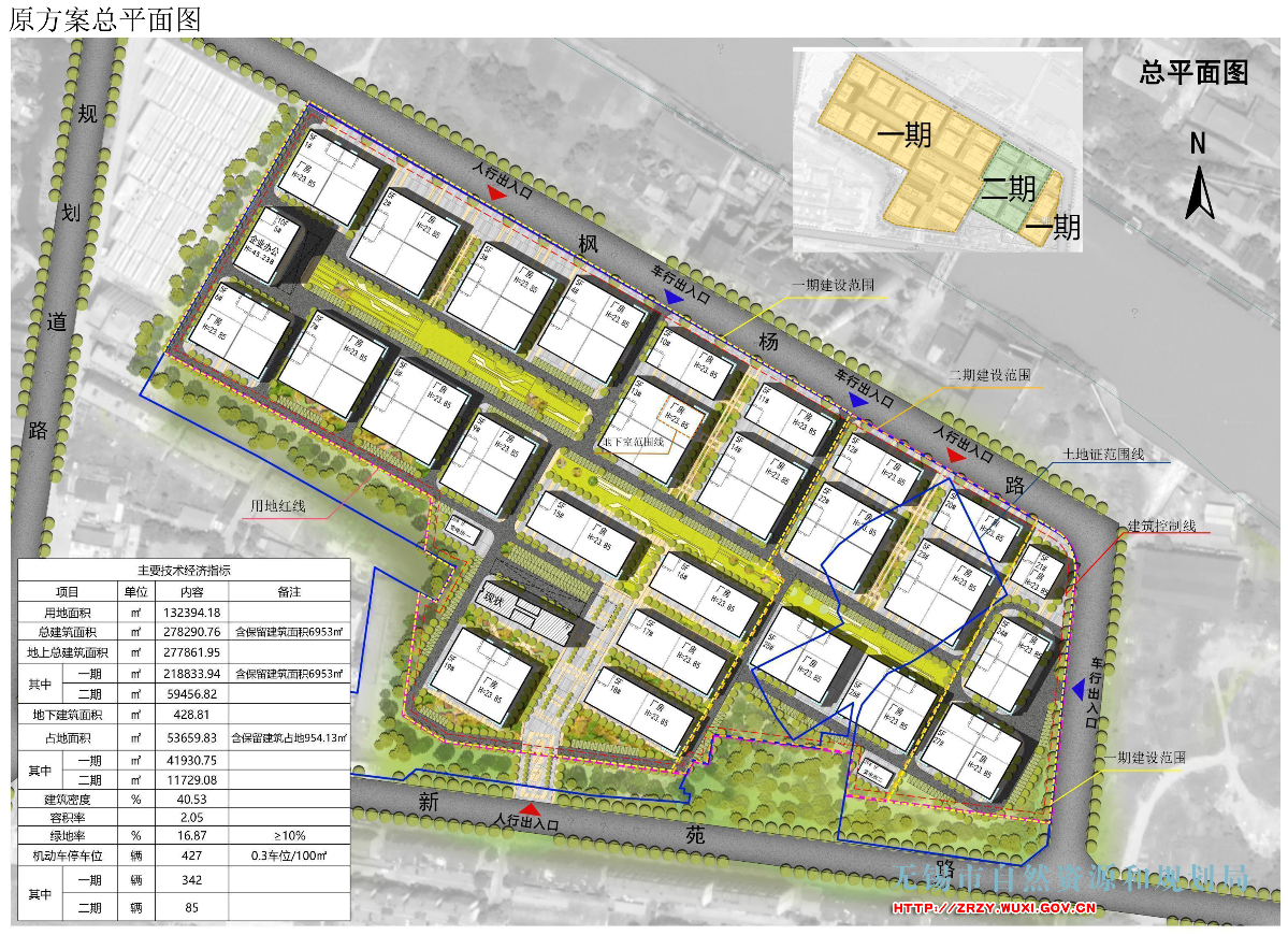
该项目位于惠山区,建设单位为无锡惠龙建设投资有限公司,洛社镇新苑路北侧,用地性质为工业用地。该地块原项目名称为无锡洛社天鸿智慧产业园项目,已于2021年4月办理规划设计方案审查,目前未建。本次建设单位拟结合项目北侧江南运河文化公园方案整体考虑,对原方案一期西侧部分进行优化,用地面积约8.47万平方米,主要调整内容为优化总平面布局,将原1栋办公楼及17栋厂房,调整为21栋厂房、5栋办公及配套用房、地下室等,同时优化了交通组织及建筑单体立面造型,符合规划审批要求。
二、公示地点和时间
公示地点:
1、项目所在地现场,周边小区出入口
2、无锡市自然资源和规划局网站(http://zrzy.wuxi.gov.cn/)
3、无锡市自然资源和规划局惠山分局公示栏
公示时间:2023年4月12日---2023年4月21日
三、联系方式和意见反馈
联系地点:无锡市自然资源和规划局惠山分局(文惠路16号)
邮政编码: 214174
联系电话:0510-83598093 0510-83598096(电话、传真)
电子邮箱:GHJHSFJ@163.COM
公示期间,如有意见或建议,请反馈给我局(请注明本人身份、联系电话或地址)。
附:原规划设计方案总平面图、效果图
本次报批变更方案总平面图、效果图(批前公示)
无锡市自然资源和规划局惠山分局
2023年4月11日




